Saltar al contenido
CARQUITEC
Estudio
Equipo
Proyectos
Contacto
Galego
X
< Proyectos
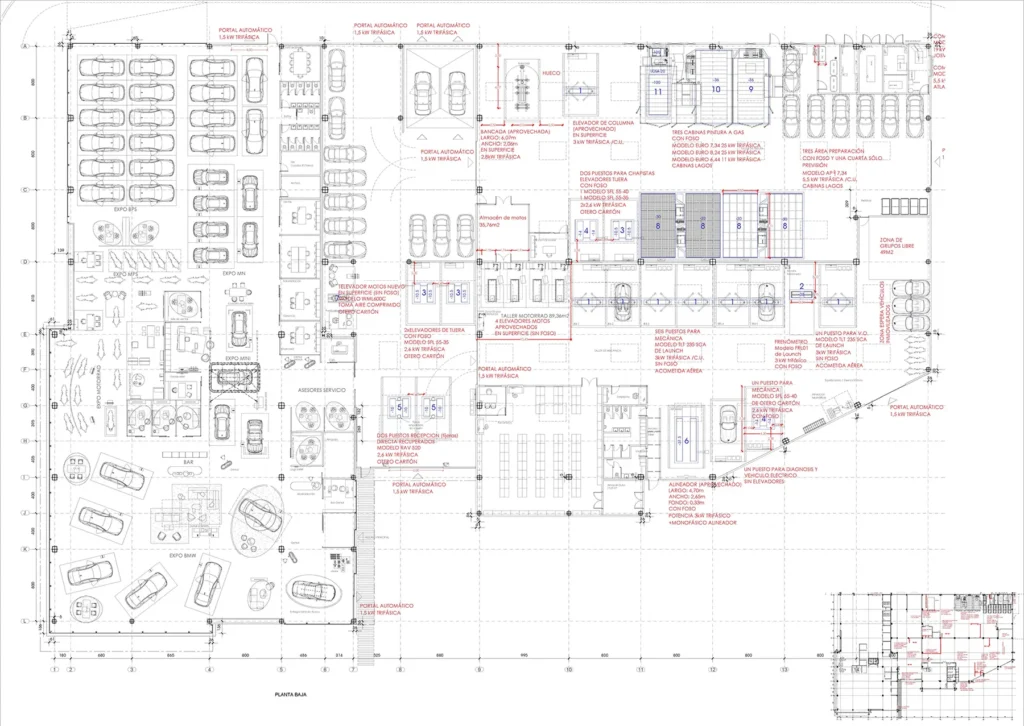
BMW Oleiros
bmw oleiros Vista 3D
bmw oleiros Vista en 3D
bmw oleiros 03
bmw oleiros 02
bmw oleiros 09
bmw oleiros 08
bmw oleiros 06
bmw oleiros 05
bmw oleiros 04
bmw oleiros 10
+ proyectos
Ir al contenido
Abrir barra de herramientas
Herramientas de accesibilidad
Herramientas de accesibilidad
Aumentar texto
Aumentar texto
Disminuir texto
Disminuir texto
Escala de grises
Escala de grises
Alto contraste
Alto contraste
Contraste negativo
Contraste negativo
Fondo claro
Fondo claro
Subrayar enlaces
Subrayar enlaces
Fuente legible
Fuente legible
Restablecer
Restablecer