Skip to content
CARQUITEC
Equipo
Estudo
Proxectos
Contacta
Español
X
< Proxectos
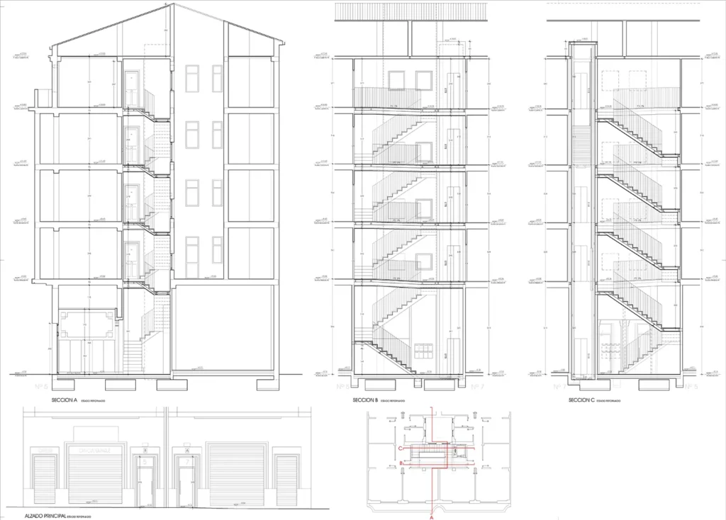
Ascensor y unificación de portal en Ruela de Brión, Santiago de Compostela
+ proxectos
Ir o contido
Abrir barra de ferramentas
Ferramentas de accesibilidade
Ferramentas de accesibilidade
Aumentar texto
Aumentar texto
Diminuír texto
Diminuír texto
Escala de grises
Escala de grises
Alto contraste
Alto contraste
Contraste negativo
Contraste negativo
Fondo claro
Fondo claro
Ligazóns subliñados
Ligazóns subliñados
Fonte lexible
Fonte lexible
Reiniciar
Reiniciar